Building Construction & Drawing
IS 962: Code of Practice for Architectural and Building Drawings

Structural Engineering
IS 875 Part I: Code of practice for Design Loads (Other Than Earthquake) For Buildings and Structures Part 1: Dead Loads- Unit Weights of Building Materials and Stored Materials
IS 875 Part II: Code of practice for Design Loads (Other Than Earthquake) For Buildings and Structures Part 2: Imposed Loads
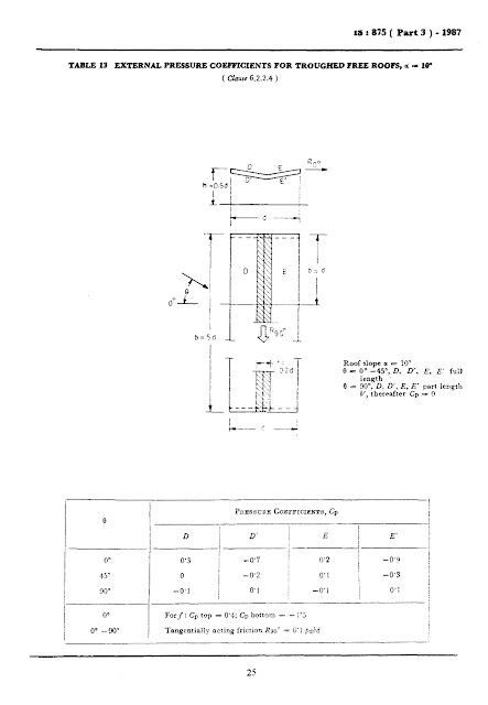
IS 875 Part III: Code of practice for Design Loads (Other Than
Earthquake) For Buildings and Structures Part 3: Wind Loads
IS 456:2000:Design of Plain and Reinforced Concrete Code of Practice
Code of practice for Design Loads (Other Than
Earthquake) For Buildings and Structures Part 3: Wind Loads
Aggregates
IS 383-1970 (Re-affirmed 2002): Specification for
Coarse and Fine Aggregates from Natural Sources for Concrete


























































































































































































































































































































